in my craft
residential, small scale Fitzroy, Melbourne
2021
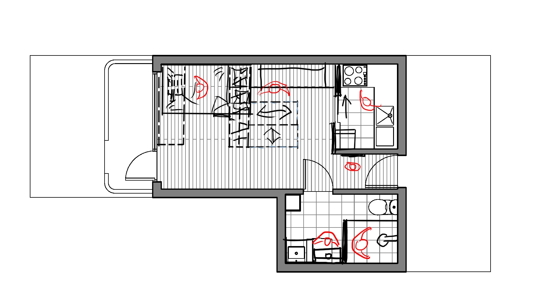
This project aims to design a joinery in an apartment based on daily activities and behaviors from a rough zoning plan to a final resolved joinery design. The project focused on developing Revit modeling and drawing skills, by developing multi-function joinery in a small-scale project.
The final joinery design is a multi-function bunk bed with a closet and a foldable table, for a design student that requires music playing, gaming, storage space, and dining within the small apartment.
residential, small scale Fitzroy, Melbourne
2021
This project aims to design a joinery in an apartment based on daily activities and behaviors from a rough zoning plan to a final resolved joinery design. The project focused on developing Revit modeling and drawing skills, by developing multi-function joinery in a small-scale project.
The final joinery design is a multi-function bunk bed with a closet and a foldable table, for a design student that requires music playing, gaming, storage space, and dining within the small apartment.

zoning plan

zoning sketch
final general layout view

multi-function bunk bed
foldable table